Bezugsbereit: leerstehende 2-Zimmer-Wohnung als Kapitalanlage oder zum Eigennutz

90491 Nürnberg, Etagenwohnung zum Kauf

Referenz

Dieses Objekt wurde bereits erfolgreich vermittelt.

Objekt­beschreibung

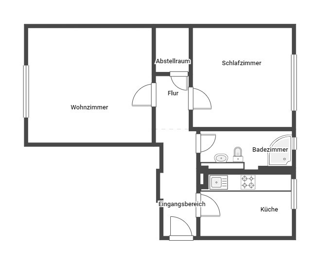
Die leerstehende 2-Zimmer-Wohnung bietet auf 51,98 m² ein Wohnzimmer, eine Küche, ein Schlafzimmer (Richtung Innenhof), ein Badezimmer und ein Abstellraum für Vorräte. Die Wohnung wurde im Jahr 2010 umfassend saniert. Unter anderem wurde das Bad, die Elektroleitungen inkl. Sicherungskasten, sowie die Heizkörper erneuert (bis auf das Wohnzimmer) und neues Laminat verlegt. Eine Gas-Zentralheizung ist im Haus vorhanden. Für Küche und Bad steht ein Durchlauferhitzer aus dem Jahr 2020 für Warmwasser zur Verfügung. Des Weiteren befindet sich im Bad ein Waschmaschinenanschluss für eine Top-Loader-Maschine.
Ebenfalls im Jahre 2010 wurde die Küche eingebaut, die im Preis inklusive ist. Ein Netzwerkanschluss ist im Wohn- und Schlafzimmer vorhanden. Der Abstellraum wird durch ein eigenes Keller- und Dachbodenabteil ergänzt, wodurch weitere Staufläche zur Verfügung steht. Nach Auszug des letzten Mieters müssen nur noch Renovierungsarbeiten bewerkstelligt werden. Es stehen in den anliegenden Straßen ausreichend öffentliche Parkplätze zur Verfügung.

Lage

Immobiliendaten-Import und Darstellung für WordPress: WP-ImmoMakler