Ihr neuer Familientraum: Gepflegter, teilsanierter Bungalow mit großem Garten und Keller

91575 Windsbach, Bungalow zum Kauf

Referenz

Dieses Objekt wurde bereits erfolgreich vermittelt.

Objekt­beschreibung

+++ Sehen Sie sich hier den 360-Grad-Rundgang an: https://app.immoviewer.com/portal/tour/2606431?accessKey=6239 +++

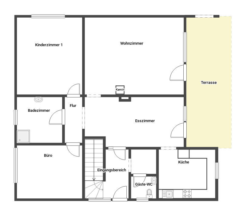
Der vollunterkellerte, massiv gebaute Bungalow bietet auf zwei Ebenen vier Schlafzimmer und zwei Bäder. Im Kellergeschoss befindet sich ein Kinderzimmer, ein Gästezimmer und ein gepflegtes Badezimmer mit Dusche. Es stehen im Kellergeschoss ein Hauswirtschaftsraum mit Waschmaschinenanschluss, sowie zwei große Vorratsräume als Stauflache zur Verfügung. Im Erdgeschoss finden Sie nach dem Eingangsbereich direkt das Esszimmer und damit den zentralen Angelpunkt des Hauses. Anschließend kommt man in die Küche, welche im Jahr 2011 komplett erneuert wurde. Zur Ausstattung gehören ein Backofen, Spülmaschine, sowie ein Einbaukühlschrank. Außerdem wurden in einigen Räumen die Decken abgehangen und LED-Spots verbaut. Eine Fußbodenheizung ist in der Küche, sowie in den beiden Bädern verbaut. Des weiteren finden Sie im Erdgeschoss ein Wohnzimmer, ein Büro, und ein weiteres Kinderzimmer vor. Auf den zwei Terrassen, die beide überdacht sind, können Sie den Garten in jeder Wetterlage benutzen und genießen. Es befindet sich um zwei Seiten des Hauses ein Gartenanteil. Seit dem Kauf des Hauses wurden einige Sanierungsmaßnahmen vorgenommen: Im Erdgeschoss wurde 2011 die Einbauküche modernisiert, sowie die überwiegende Elektrik im Erdgeschoss. Des weiteren wurde 2013 ein neuer Vinylboden in einigen Räumen des Erdgeschosses verlegt. 2021 wurde das Bad im Erdgeschoss (inkl. Elektrik, Wasserleitungen, Heizung) und das Esszimmer komplett saniert. Weiterhin wurde eine gebrauchte Ölheizung Baujahr 2005 in Verbindung mit einer Wärmepumpe, Baujahr 2021, für die Warmwasseraufbereitung verbaut. Somit wird die Ölheizung nur in den Wintermonaten genutzt. Für den Schwedenofen, Baujahr 2011, steht hinter dem Haus ein großes Holzlager zur Verfügung. In der Garage und dem Hof davor finden Sie Platz für Ihre Fahrzeuge und durch den überdachten Teil hinter dem Haus auch für Ihre Motorräder. Der Bungalow wird aktuell noch vom Eigentümer selbst bewohnt und wird spätestens am 01.01.2023 frei, oder nach Absprache.

Lage

Immobiliendaten-Import und Darstellung für WordPress: WP-ImmoMakler